Architectural建筑设计

万博实验学校

项目概况

  • 设计单位:广东大宸建筑设计有限公司
  • 建设单位:惠州万博教育投资有限公司
  • 项目地点:广东省惠州市
  • 项目规模:本项目总建筑面积150000㎡.

万博实验学校


教育美学|大宸设计学校篇·万博实验学校

校园建筑,

是学校给予学生的第一堂课,

通过润物无声的方式,

给予学生潜移默化的影响,

传递着校园精神和美学认知。

教育美学|大宸设计学校篇·万博实验学校

大宸设计·万博实验学校项目

位于惠州市仲恺区惠南高新科技产业园内,

总建筑面积近14万平方米,

学生总数近4700人,教职工约300人

是一个完整的全日制封闭式管理完整民营学校。

教育美学|大宸设计学校篇·万博实验学校

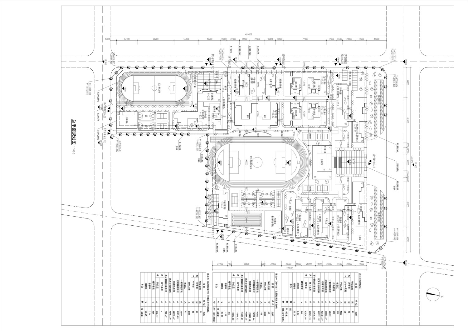
总平面图

教育美学|大宸设计学校篇·万博实验学校

学校功能分区由高中部和九年一贯制组成,

大宸设计结合项目地形将场所区分串联,

划分出中心区、主要教学区、

辅助教学区、生活区和运动区。

教育美学|大宸设计学校篇·万博实验学校

设计理念


设计根植于当地文脉,

采用古典写意的轮廓表现形式,

呈现出“骨”和“神”的精神内核,

建立学校与学生之间的情感和精神联系,

营造学生的归属感与认同感。

教育美学|大宸设计学校篇·万博实验学校

建筑顶部借鉴古代悬山式屋顶设计,

屋檐悬伸在山墙以外,

整体形状如同一本打开的书,

寄托求知学习的美好寓意。

教育美学|大宸设计学校篇·万博实验学校

建筑立面以素雅白和浅色灰为主调,

结合众多玻璃窗台的运用,

营造通透洗练的立面效果,

寓意开放探索的求知精神。

教育美学|大宸设计学校篇·万博实验学校

在空间的设计上,

“拱门”“庭院”等尺度亲人的空间理念,

减弱了地面以上的建筑体量,

反映传统花园精髓的园林和架高庭院,

延展了公共空间,

提供一个尺度宜人且活泼的校园环境。

教育美学|大宸设计学校篇·万博实验学校

设计师在室外空间,

选择种植本地的开花植物和果树。

既可以让学生学习植物知识,

也营造了一个生机莹然的自然环境。

教育美学|大宸设计学校篇·万博实验学校

整体设计灵活利用空间,

让户外空间、公共活动空间

与教学空间完美融合,

通过简洁的动线设计,

形成不同功能间的互动交流,

以灵动、巧妙的空间结构,

塑造自然、活泼的学习环境。

教育美学|大宸设计学校篇·万博实验学校

项目设计结合当地地形、环境、文化,形成四个开发思路:


集约型校园:

充分挖掘土地利用价值,

对建筑群体组织采用相对密集

而不压抑的布局手法,

形成疏密有致、以小见大的整体特色。

教育美学|大宸设计学校篇·万博实验学校

人性化校园:

以校园教学功能为主导,

以师生校园行为为依据,

打造实用的功能校园框架,

创造利于师生间多方位交流学习的

学习环境、生活空间、成长氛围。

教育美学|大宸设计学校篇·万博实验学校

生态化校园:

遵循保护和改善自然系统的原则,

营造与学校形象匹配的校园印象,

优化校园与周边环境关系,

寻求人文与自然的交融,

营造灵动而不机械的校园生态。

教育美学|大宸设计学校篇·万博实验学校

文化型校园

通过对中学教育理念的研究思考,

创造因地制宜的校园建筑风格,

体现当地历史文化、教育、建筑设计的融会贯通。

教育美学|大宸设计学校篇·万博实验学校

通过教学空间的设计,

引导学生有意识地探索自然、

参与团体游戏,

培养学生发展潜能,

是我们的设计初衷,

也是最终想要呈现的效果。

教育美学|大宸设计学校篇·万博实验学校

项目名称:万博实验学校

项目位置:广东省惠州市

项目类型:学校建筑

建筑面积:120427.6㎡

建设单位:惠州万博教育投资有限公司

设计单位:广东大宸建筑设计有限公司

设计时间:2020年


返回顶部